2013年 北嶺中学校 算数(3)
今回は、大問4を取り上げます。
本年度の北嶺入試では最難問で、文字通り合否を分けた1問となりました。
実はこの問題には、難関校の入試問題を解き慣れていて、
算数の得意な受験生ほどおちいりやすい導入のワナがあります。
正解するための最大のポイントは、しきりを動かさないことです。
問題は、標準札幌校のホームページの北嶺中学校過去入試問題で
ご覧になれます。
(1)
難易度A 面白さ☆☆☆☆
水そうに水を入れる問題は、入試問題の定番と言えるほど出題頻度の高い問題です。
一見、「立体図形」の単元のように思われますが、
実は「平面図形」の考え方で解く問題がほとんどです。
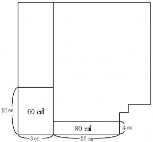
本問でも、水そうの前面(床に垂直な面)を底面、奥行きの30㎝を高さと考えます。
しきりの左右の水の体積1800㎤,2400㎤を、それぞれ高さの30㎝で割れば、
水の入る部分の面積が求められるので、平面図形の考え方で解くことができます。
しきりの左右の水の面積は、それぞれ、1800÷30=60(㎠)、2400÷30=80(㎠)となるので、
左右の水面の高さは、それぞれ60÷3=20(㎝)、80÷20=4(㎝)となります。
左右の水面の高さの差は、20-4=16(㎝)となります。
答え 16㎝
(2)
難易度B 面白さ☆☆☆☆
最初に導入のワナと書きましたが、灘、開成をはじめとする難関校の
入試問題では、導入形式と呼ばれる問題がよく出題されます。
何問かの小問のついた問題で、それぞれの小問自体が
次の小問のヒントになっており、
順に解き進めていけば解法のヒントが見つかるタイプの問題です。
難関校の入試問題を解き慣れている受験生ほど、
導入形式に慣れてなれているため、(1)の結果を用いて、
(2)以降の小問を解こうとしがちです。
問題文中の「はじめの状態からしきりを右に動かすと」という部分に
とらわれるあまり、頭の中でしきりを動かして、左右の水面が
等しくなる位置を求めようとした受験生には、
本問はとんでもなく難しい問題に思われたはずです。
この問題では、左右の水面の高さを同じにするのですから、
まずは、いったんしきりを取り去って水面の高さを考えましょう。
水の面積は、左右あわせて60+80=140(㎠)となります。
床から5㎝の高さまでの水の面積は5×23=115(㎠)なので、
残りの水の面積は、140-115=25(㎠) です。
床から5㎝より上では、水そうのはばが23+2=25(㎝)となるので、
水面の高さは、さらに25÷25=1(㎝)高くなり5+1=6(㎝)とわかります。
ここでしきりをもどしてみると、水面の高さがわかっているので、
左側の面からのしきりの距離は60÷6=10(㎝)と、容易に求めることができます。
答え 10㎝
(3)
難易度C 面白さ☆☆☆☆
この問題でも、(2)の状態からしきりを右に動かしていくと考えるのは禁物です。
最初からしきりの位置が固定されていて、しきりの左右の水面の高さの比が12:35に
なっていると考えましょう。
実際には、(2)の状態からさらにしきりを右に動かしているので、
しきりの右側の水面の高さが7㎝よりも高くなっていることは容易に想像がつきます。
そこで、水そうの右下のへこんだ部分を加えて、
しきりの右側の部分を長方形にすることを考えます。
へこんだ部分の面積は5×(2+5)+2×5=45(㎠)なので、
この部分を加えると、しきりの右側の部分の面積は80+45=125(㎠)となります。
しきりの左右にできた2つの長方形の面積が、
それぞれ60㎠と125㎠で、高さの比が12:35ですから、
横の長さの比は(60÷12):(125÷35)=5:(25÷7)=7:5とわかります。
横の長さの和は23+2+5=30(㎝)なので、
しきりの左の長方形の横の長さ、すなわち、左側の面からのしきりの距離は
30×7÷(7+5)=17.5(㎝)とわかります。
答え 17.5㎝
次回、北嶺中学校 算数(4)は、大問5の解説をおこないます。


